ZWS振网筛用途及特点
ZWS型振网筛适用于对松散的复合肥料及其它松散的细物料进行分级。振网筛(ZWS型)是以振动电机做为振动源,牵引筛网及筛框振动,实现物料分级。振网筛(ZWS型)振幅可调,筛分效率高,生产能力大,动负荷小,噪音低,密封防尘,维修方便。
ZWS振网筛型号及参数

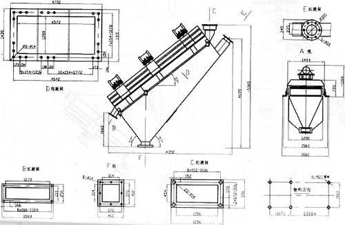
振网筛安装尺寸:
| 型号 | 筛 面 | 给料粒度(mm) | 处理量(t/h) | 振次(l/min) | 双振幅(mm) | 功率(kw) | 外形尺寸 长×宽×高(mm) | 总重量(kg) | ||||
| 层数 | 面积(m2) | 倾角(°) | 筛孔尺寸(mm) | 结构 | ||||||||
| ZWS1230 | 1 | 3.6 | 37 | 10×40 | 编织 | ≤60 | 30-35 | 1450 | 3-5 | 0.85×2 | 3090×1700×3169 | 1623 |
| 2ZWS1230 | 2 | 3.6 | 33 | 上:4×50 下:1.4×50 | 编织 | ≤60 | 30-35 | 1450 | 3-5 | 0.85×2 | 3301×1680×3300 | 2300 |
| ZWS1245 | 1 | 5.4 | 37 | 上:4×50 下:1.4×50 | 编织 | ≤60 | 45-60 | 1450 | 3-5 | 0.85×3 | 4350×1660×5066 | 2631 |
| 2ZWS1245 | 2 | 5.4 | 37 | 上:4×50 下:1.4×50 | 编织 | ≤60 | 45-60 | 1450 | 3-5 | 0.85×3 | 4496×1660×5648 | 3612 |
| ZWS1260 | 1 | 7.2 | 20 | 4×25 | 编织 | ≤60 | 60-90 | 1450 | 3-5 | 0.85×4 | 6576×1660×4240 | 3290 |
| 2ZWS1260 | 2 | 7.2 | 37 | 上:4×50 下:1.4×50 | 编织 | ≤60 | 60-90 | 1450 | 3-5 | 0.85×4 | 5678×1660×6156 | 4532 |

